FACTS
…
client: alpenländische
location: westendorf-tirol
scope of service:
completion:
team: gp
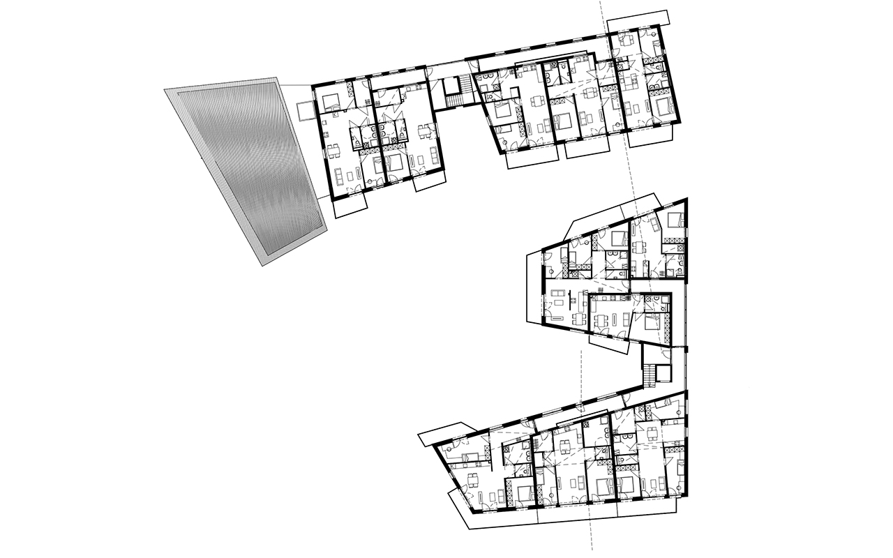
an unbuilt area surrounded by various housing types.
the 5 houses are designed following the new alley and surround an open space.
the dwellings are designed according to the regulations of the social housing System and shall be highly needed affordable appartements in an expensive Region near Kitzbühel.









