FACTS
…
client: red cross Innsbruck-tirol
adress: innsbruck
scope of service:study
timeframe: 2018
team: gp
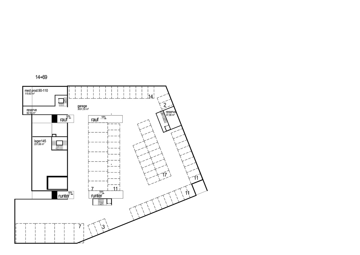
the existing premises do not any more fullfill the changing and growing Needs. by keeping the main Building from the 60-ies the Concept proposes a solution including appartments for social housing






