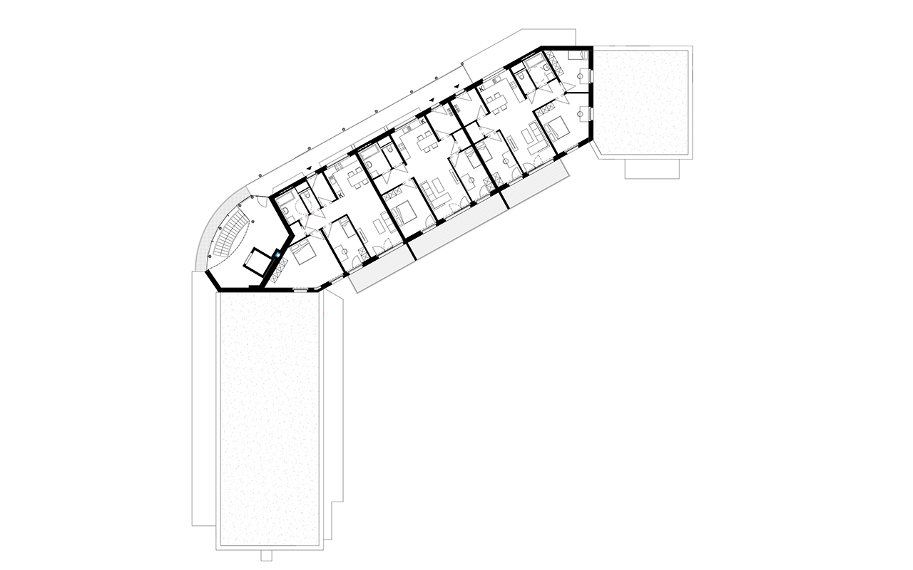
FACTS … client: alpenländische heimstätte location: hall untere land scope of sevice: full planning service completion: 2020 team: georg pendl, sylvia naschberger an extension to the already existing quarter