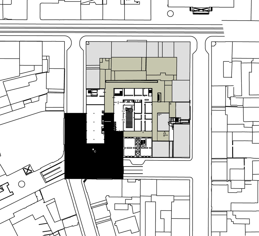
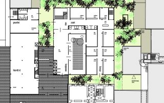
FACTS …
eu weit offener Wettbewerb
standort: Innsbruck team: georg pendl zusammen mit thomas moser
marie thresien straße 27 A-6020 innsbruck
P: +43-699 12233456
gp@pendlarchitects.at